江若交通ビル 賃貸情報
江若交通株式会社が所有する賃貸ビルの空き状況や詳細情報をご紹介いたします。
賃貸をご希望の方はお気軽にお問い合わせください。
江若交通ビル 外観イメージ


堅田駅前ロータリーに面し、利便性の良さが自慢の立地です。
内観イメージ



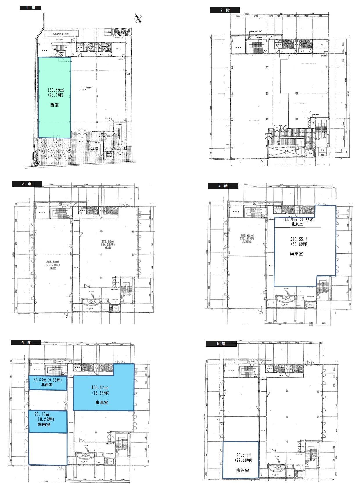
オフィス利用や各種教室・会議室利用など、多目的にお使いいただけます。
一時貸しもご相談お受けいたします。
建物情報
| 建物 | |
|---|---|
| 物件名称 | 江若交通ビル |
| 所在地 | 大津市真野1丁目1番62号 |
| 延床面積 | 4,409.56㎡ |
| 構造 | 重量鉄骨造 |
| 規模 | 地上6階 |
| 竣工時期 | 平成4年1月 |
| エレベーター | 11人乗1基 |
| 空き駐車場 | 有(台数相談) |
| 正面玄関利用時間 | 自動施錠(カードキー有の場合24時間利用可能) |
| ビル利用可能時間 | 平日・土曜・日祝(24時間警備) |
| 室内 | |
|---|---|
| 天井高 | 1階~2階 2.80mm、 3~6階 2.50mm (OAフロア面より) |
| 床仕様 | OAフロア |
| 空調方式 | 個別空調 |
| 光ケーブル | 引込可能 |
| 施錠形式 | 非接触ICカード(SECOM) |
場所情報
お問い合わせ先
江若交通株式会社 不動産事業部
〒520-0232
滋賀県大津市真野1丁目1番62号
(土・日・祝・5月1日・年末年始を除く9:00〜18:00)













